Questa mattina, alla presenza del Direttore Generale e Dirigente della IV Direzione “Edilizia” della Città Metropolitana di Messina Salvo Puccio e del Sindaco del Comune di Spadafora Tania Venuto è stato dato l’avvio alla fase realizzativa della costruzione del nuovo liceo scientifico “Galileo Galilei” con la consegna dei lavori alla Consorzio fra Cooperative di Produzione e Lavoro – Cons. Coop. – Società Cooperativa in sigla “CONSCOOP” di Forlì.
La soddisfazione di Puccio
“Si comunica la soddisfazione del Sindaco Metropolitano, Federico Basile, lieto per l’avvio di un progetto pensato, avviato e proposto dalla Città Metropolitana di Messina. Dopo aver ottenuto il finanziamento e definito l’iter progettuale – ha dichiarato il Direttore Generale Puccio – adesso si parte con i lavori che dovranno essere iniziati entro questo mese e conclusi entro marzo 2026. Si tratta di un progetto sperimentale perché viene fuori da una gara che ha realizzato il Ministero dell’Istruzione, attraverso un concorso di progettazione, e che noi abbiano utilizzato facendolo diventare progetto appaltabile mettendolo, successivamente, a gara tramite accordo di programma con Invitalia”.
La soddisfazione del sindaco Venuto
Il Sindaco di Spadafora Tania Venuto ha ringraziato la Città Metropolitana di Messina per “l’impegno profuso nel reperire i fondi e nel realizzare il percorso tecnico-amministrativo che permetterà al territorio di potersi dotare di una nuova sede scolastica all’avanguardia sia dal punto di vista dell’ecosostenibilità, sia dal punto delle dotazioni infrastrutturali”.
I dettagli
L’importo complessivo progettuale è di 5.814.586,95 euro ed è stato finanziato con Fondi PNRR Missione 2 – Rivoluzione verde e transizione ecologica Componente 3 – Efficienza energetica e riqualificazione degli edifici Investimento 1.1: “Costruzione di nuove scuole mediante sostituzione di edifici”, integrato da un co-finanziamento di 1.440.821,12 euro a valere sul bilancio della Città Metropolitana di Messina.
Allo stato attuale, il liceo scientifico “Galilei” di Spadafora, sede associata del IIS “Maurolico” di Messina, svolge le sue attività di formazione presso due diversi plessi scolastici: la sede principale, sita in via Grangiara, è di proprietà della Città Metropolitana di Messina, mentre il plesso (ex Gabelli) sito in via Acquavena, è di proprietà del Comune tirrenico che lo ha ceduto in comodato d’uso gratuito alla Città Metropolitana di Messina.
Cosa prevedono gli interventi
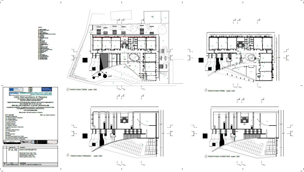
Sulla base della relazione redatta dal Raggruppamento Temporaneo di Professionisti denominato “Orione” (con capogruppo/mandatario arch. Giovanni Fiamingo), gli interventi prevedono la demolizione e ricostruzione del preesistente edificio scolastico denominato “Don Orione”, sito in via Collodi a Spadafora, per trasferirvi la popolazione scolastica frequentante il plesso (ex Gabelli). La nuova struttura prevede la realizzazione di 15 aule normali, 2 laboratori speciali, 1 locale deposito per ogni piano, 1 aula insegnanti, 1 locale uffici, wc divisi per sesso e portatore di handicap per ogni piano, locali tecnici.
In dettaglio, l’articolazione funzionale della nuova scuola prevede:
a) la collocazione al piano terra di:
– sette aule per le attività didattiche di circa 49,00 mq, disposte sui lati nord ed est, dotate di pareti comuni scorrevoli per l’implementazione delle attività di gruppo. Le aule sono dotate di ampie pareti vetrate, “protette” otticamente da sistemi di brise-solei a lama verticale e con possibilità di protezione dall’irraggiamento solare attraverso tende a rullo scorrevoli;
– un locale ufficio di 35,50 mq, posto nell’angolo sud/est, con accesso diretto dagli spazi comuni;
– un locale deposito di 8,27 mq, posto in adiacenza al locale ufficio;
– un locale infermeria di 6,95 mq, posta in posizione facilmente accessibile dagli spazi comuni, in prossimità del locale ufficio;
– aula insegnanti di 19,50 mq;
– uno spazio per l’accoglienza, di ingresso/agorà, dotato di punto di accettazione e controllo dell’ingresso, di 209.38 mq, che fonde e integra in un sistema unitario l’atrio, gli spazi distributivi, aggregativi e informali;
– spazi connettivi per 136,74 mq, attrezzati da sistemi di armadiature;
– servizi igienici di piano, per alunni e professori, per 44,76 mq, dotati di wc disabili e ampio disimpegno, dotati di sistemi di aerazione e illuminazioni naturali e artificiali;
– gruppo scale e ascensori;
– ampio spazio porticato di accesso sul fronte sud.
b) la collocazione al piano primo di:
– otto aule per le attività didattiche di circa 49,00 mq, disposte sui lati nord ed est, dotate di pareti comuni scorrevoli per l’implementazione delle attività di gruppo. Le aule sono dotate di ampie pareti vetrate, “protette” otticamente da sistemi di brise-solei a lama verticale e con possibilità di protezione dall’irraggiamento solare attraverso tende a rullo scorrevoli;
– due laboratori speciali, rispettivamente di 51,96 mq (oltre deposito di 4,50 mq) e 36,28 mq;
– un locale deposito di 8,10 mq, posto in adiacenza ai laboratori speciali;
– uno spazio informale di 10,50 mq, ricavato sulla sommità dell’aula insegnanti;
– spazi connettivi per 163,26 mq, attrezzati da sistemi di armadiature;
– servizi igienici di piano, per alunni e professori, per 44,76 mq, dotati di wc disabili e ampio disimpegno, dotati di sistemi di aerazione e illuminazioni naturali e artificiali;
– gruppo scale e ascensori.
Infine, nel progetto sono previsti ulteriori dotazioni funzionali, come la collocazione dell’impianto fotovoltaico, due Unità di Trattamento Aria e un ampio spazio di aggregazione, integrato dalla presenza di verde,
Le finalità progettuali tendono a una riduzione di consumi e di emissioni inquinanti, a una maggiore sicurezza sismica (indice di sicurezza sismica uguale a 1), una migliore fruizione didattica per gli studenti grazie anche a un’offerta formativa attualmente assente nel territorio circostante. Il Responsabile Unico del Procedimento è l’ing. Rosario Bonanno.













Vuoi ricevere le notifiche sulle nostre notizie più importanti?